
Lugar de Guitiande, Brión
P.2017, O.2023
Fotografías Luis Díaz Díaz
• Premio Próximos – I Edición Premios de Arquitectura 2024 ‑ Premio
La parcela cuenta con una configuración muy atractiva desde el punto de vista espacial y funcional. Presenta una forma irregular rematando en ángulo agudo al oeste, con la zona ajardinada. El área pavimentada, aunque trapezoidal, se asemeja sensiblemente a un rectángulo que se organiza por franjas paralelas, con un primer patio longitudinal, tras el muro que resuelve el frente a la vía pública, una edificación principal intermedia, ocupando todo el ancho de la parcela (de sur a norte) y con la mayoría de sus huecos en las fachadas este y oeste, y un segundo patio paralelo que se interpone entre esta y el jardín situado a una cota superior.

Casi una tercera parte de la edificación original, la que ocupa el volumen más al norte, estaba destinada a almacenaje en planta alta y a una conexión externa entre ambos patios en planta baja. En este caso ambas fachadas estaban sin cerramiento, mientras en la parte alta estaban cegadas con una hoja de ladrillo de muy baja calidad constructiva.

El conjunto llevaba décadas sufriendo reformas, arreglos y ampliaciones desafortunadas desde el punto de vista formal, constructivo y tectónico: enfoscados, rejuntados, cierres de ladrillo, carpinterías de aluminio y dos nuevos volúmenes descontextualizados en ladrillo y hormigón (un aseo y un almacén). No obstante, la normativa permitía mantener el volumen completo edificado. Por otro lado, la altura libre de la planta baja no alcanzaba los dos metros bajo los pontones, altura claramente insuficiente para los estándares actuales, más si cabe, si tenemos en cuenta que la nueva solución de forjado la reduciría aún más.
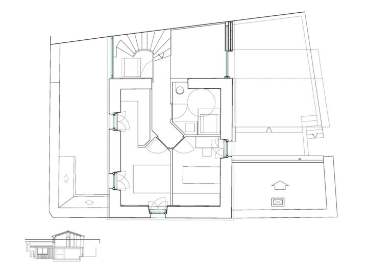
El programa deseado para la nueva vivienda requería el uso del volumen existente completo, de tal forma que las labores principales del proyecto fueron de limpieza y de corrección del tamaño y geometría de los volúmenes añadidos con el objetivo conseguir un equilibrio dimensional que permita la lectura de la tipología original y recuperar una materialidad adecuada. Las diferentes estancias se acomodan dentro del volumen de la edificación existente y se adaptan a los niveles marcados por los elementos protegidos de cantería de los huecos de fachada. Por cuestiones de habitabilidad y para poder resolver una cámara ventilada adecuada, se plantea como decisión fundamental la de excavar de forma intensa y selectiva la planta baja.
El resultado es una planta resuelta en tres niveles conectados mediante escalones: el más alto se corresponde con el vestíbulo a doble altura del que arranca la escalera, el siguiente con el corredor que permite la conexión entre ambos patios y un nuevo acceso al área del salón- comedor dispuesto, al igual que la cocina, en el nivel más bajo. Al mismo tiempo, los patios contarán con tres niveles que se corresponden con los del interior de la vivienda permitiendo, así, que todas las estancias en planta baja cuenten con salida directa a cota al exterior. Dos nuevos escalones completan la escalera de piedra granítica que conecta el patio este con el jardín.
El patio de acceso se libera casi al completo de los añadidos sustituyéndolos por un armario en L; este espacio de transición se orienta ahora a labores de almacenaje, limpieza etc. El añadido del patio posterior se sustituyó por uno nuevo con cubierta ajardinada que acoge la cocina, conectada con el patio a través de una puerta, un amplio ventanal y una barra. En planta alta se resuelven tres dormitorios y un cuarto de baño.
Rúa de San Pedro 94, 2º.
15703 Santiago de Compostela.
A Coruña. España.
arquitectos@arrokabe.com
Tlf. +34 981 57 50 52