
Brión. A Coruña
P.2016 O.2018
Fotografías exteriores Luis Díaz Díaz
Fotografías interiores y proceso Noire et Blanche
• IV Premio de Arquitectura de Teja HISPALYT 2017-2019 ‑ Primer Premio Categoría Obra Nueva
• XVIII Premios COAG 2019 ‑ Finalista Categoría Divulgación, Investigación y Diseño
SIETEYMEDIO es el primer producto de ARKBSISTEMAS, un proyecto que nace de una iniciativa del estudio ARROKABE arquitectos y que está enfocado al desarrollo de elementos y sistemas para la construcción en madera.
SIETEYMEDIO es un sistema modulado y a la vez flexible, que permite resolver de forma eficiente tanto estructura como cerramientos exteriores y la relación entre ambos. Aunque su configuración y dimensiones se han estudiado para asegurar su eficacia en viviendas unifamiliares, sus dimensiones lo hacen idóneo en diferentes usos que además podrían ser fácilmente variados a lo largo de la vida útil de la construcción.La prefabricación de buena parte de los componentes deja para la obra únicamente labores de montaje. Esto deriva en un montaje rápido y preciso, acortando notablemente el tiempo de ejecución. El aislamiento se resuelve de forma continua por el interior, lo que permite evitar cualquier tipo de puente térmico.
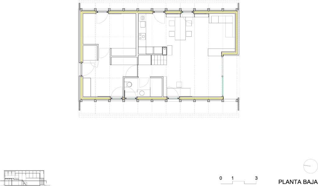
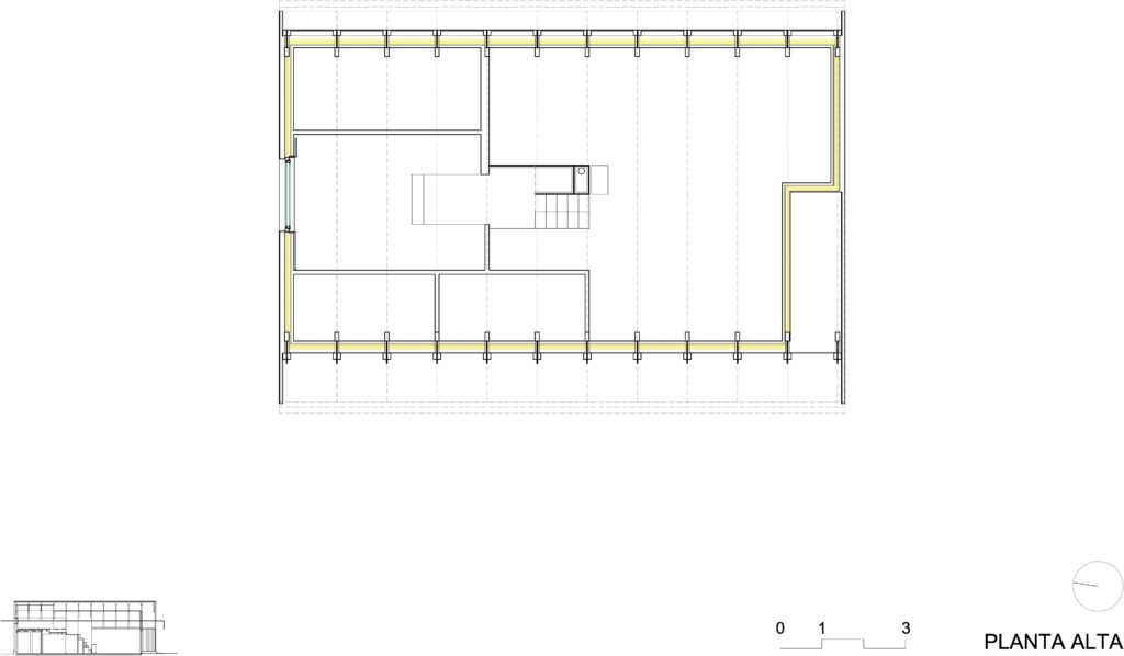
Los clientes solicitaban una amplia estancia que acogiera el salón-comedor-cocina y dejara espacio libre para desarrollar diferentes actividades, tanto profesionales como relacionadas con el ocio. El programa se completa en planta baja con un dormitorio, un baño, espacios de almacenamiento y un amplio corredor que sugiere distintas posibilidades de uso. La generosa altura libre que define el sistema para su zona central y la incorporación de parte de la cámara de cubierta al espacio interior de la vivienda ha permitido generar un pequeño altillo de carácter multifuncional que vuelca en su acceso sobre el gran espacio del salón-comedor.
Timelapse comienzo construcción.

Proceso de construcción.
Rúa de San Pedro 94, 2º.
15703 Santiago de Compostela.
A Coruña. España.
arquitectos@arrokabe.com
Tlf. +34 981 57 50 52