
Rua do Medio. Santiago de Compostela. A Coruña
P.2013 O.2018
Fotografías Luis Díaz Díaz
• Premio Egurtek de Arquitectura y Técnicas de la Madera 2016 ‑ Primer Premio de Edificación
• Premios de Arquitectura y Rehabilitación de Galicia 2016 ‑ Mención
• XVII Premios COAG 2017 ‑ Finalista Categoría Rehabilitación
• Thinking Wood Awards 2016 ‑ Mención
• Premio ASCER 2015 ‑ Finalista
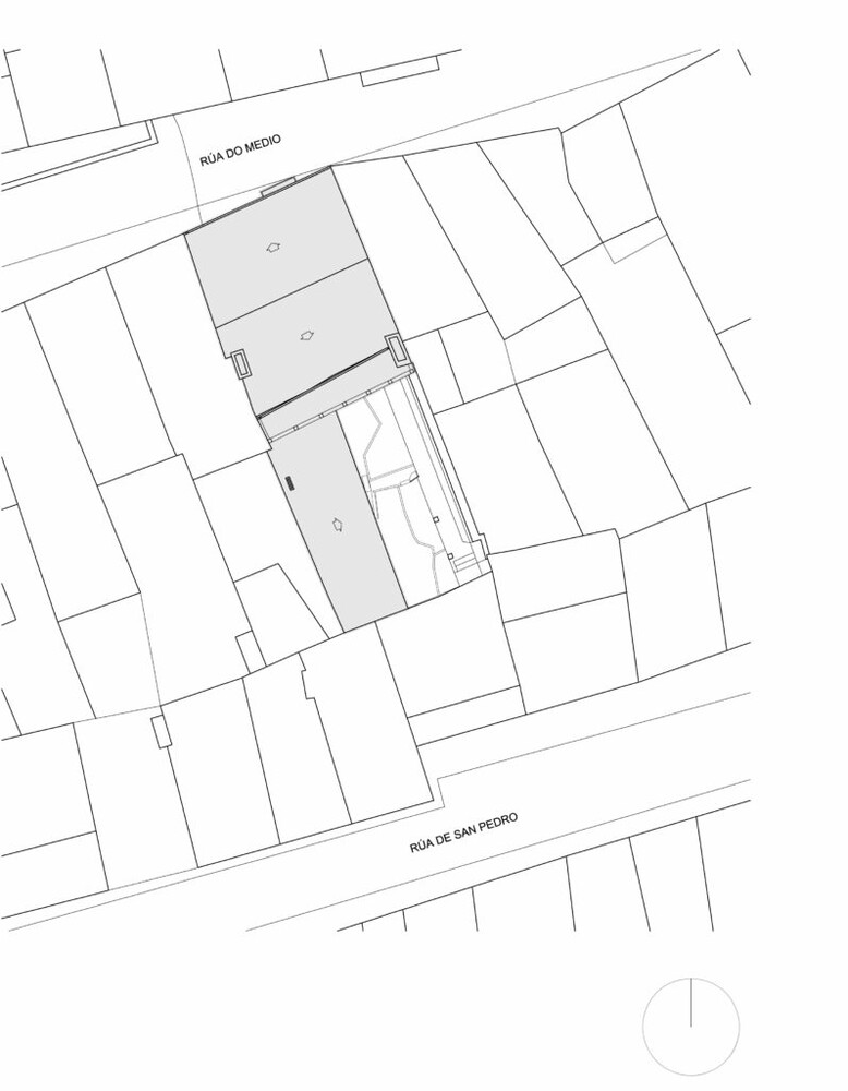
El conjunto a rehabilitar estaba formado por una construcción tradicional principal entre medianeras con un añadido descontextualizado abierto a una parcela interior. Adosada a uno de los muros laterales de cierre, había una edificación auxiliar a un agua.
Se recuperó la volumetría del añadido de la fachada trasera con entramado y cerramientos de madera conformados a la manera tradicional por montantes y durmientes sobre la que apoyan los forjados de piso.
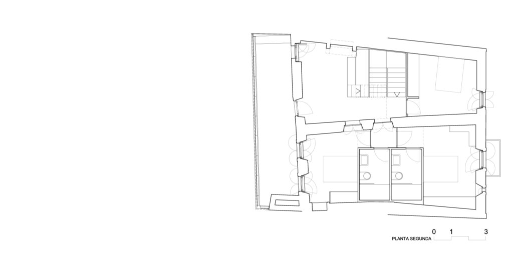
La nueva escalera ocupa la posición de la existente y se va aligerando a medida que asciende por el hueco, por el que entra luz cenital a las diferentes plantas. La construcción de cada tramo la de escalera, desde la caja cerrada al elemento ligero que cuelga de la estructura de cubierta, se relaciona con el distinto carácter de cada uno de los pisos. Esta estratificación tiene su correspondencia en el nuevo elemento adosado a la fachada trasera a través del que se produce la relación con el jardín: espacio exterior cubierto, galería-corredor y terraza.
En el patio interior se diseña un jardín inspirado por los parterres existentes y apoyándose en las trazas de los distintos muros. El alpendre se recupera reaprovechando los pies derechos de piedra granítica y reconstruyendo una cubierta basada en el sistema de la estructura original.
Rúa de San Pedro 94, 2º.
15703 Santiago de Compostela.
A Coruña. España.
arquitectos@arrokabe.com
Tlf. +34 981 57 50 52