
O Saviñao. Lugo
P.2022 – O.2024
Fotografías Denís Estévez Fernández
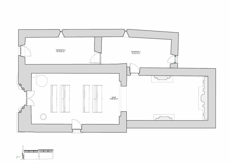
La iglesia de Santa María de Seteventos es un templo rural con origen en el monacato que se mantuvo en los valles del Miño y el Sil durante toda la Alta Edad Media. Se trata de una iglesia románica de planta rectangular de finales del siglo XII, con nave única y cabecera recta, a la que básicamente se le añadió un volumen lateral en su lado noroeste para contar con un espacio de sacristía. También es una adición posterior la espadaña sobre la fachada principal.

Destaca la conservación de elementos románicos como la portada que presenta dos parejas de columnas con capiteles decorados con motivos vegetales y las tres arquivoltas decoradas con bolas que enmarcan el dintel, y el arco triunfal sobre columnas finalizadas en capiteles historiados y una decoración de ajedrezado alrededor de las dovelas.
En el lado meridional del templo se conservan los modillones medievales que no presentan decoración.
La singularidad de la iglesia de Santa María de Seteventos está en el excelente conjunto de pinturas murales al fresco de finales del siglo XV dispuestas en el hastial del ábside, sobre el arco triunfal de acceso a la capilla mayor, en el que se representan la Anunciación, en el trasdós del arco, y el Juicio Final basado en el relato apocalíptico de San Juan, completado con el tema del Calvario los mártires, entre los que se representa a Santa Catalina.
Todas estas características, explican fácilmente la consideración de esta pequeña iglesia como Bien de Interés Cultural y la reflexión que precisa cualquier proceso de restauración que en ella se proponga. Es preciso entenderla en su contexto, clarificando la lectura de su evolución, destacando y protegiendo especialmente aquellos elementos arquitectónicos y pictóricos que la singularizan.


Teniendo en cuenta la falta de estanqueidad y el mal estado de la estructura se plantea la sustitución de la cubierta al completo. Las diferentes pendientes de cubierta vienen determinadas por las trazas de las cornisas y los remates de ambas fachadas.
Esas diferencias se producen entre los faldones de las cubiertas de la nave, la cabecera y la sacristía. Se plantea el ajuste de los nuevos faldones nivelando las cumbreras del ábside y de la nave. La diferencia de altura entre ambas y la distinta pendiente de los faldones se resuelve elevando el muro del hastial hasta la envolvente de la cabecera.
La nueva estructura se basa en la existente, con un solo orden de cabios en el espacio de la sacristía y de pares para la nave del templo. Sin tirantes en el caso de la cubierta a un agua y con tijeras en las cubiertas a dos aguas. Esta nueva solución permite prescindir de los tirantes junto a los muros de los hastiales, una cuestión determinante en un caso como este, en el que la contemplación de las pinturas es fundamental. También el trazado de la nueva estructura reduce la dimensión de la escuadría del tirante y al mismo tiempo la eleva, contribuyendo a una mejor visión de las mismas.
En esa misma línea, y de acuerdo con la intención de clarificar el interior de las naves de la iglesia, se plantea la eliminación del coro, que consideramos descontextualizado. En primer lugar, porque se trata de una estructura de madera muy precaria ejecutada posiblemente en el siglo XX que está obstruyendo la lectura del arco interior de la portada románica, al que parte en dos. Al mismo tiempo la escalera de subida al mismo es un elemento funcionalmente deficitario constituido de un primer tramo de arranque de fábrica de ladrillo y mortero y un segundo tramo de madera. La disposición del coro, de unas dimensiones muy pequeñas, está además interfiriendo en la visión de las pinturas del hastial intermedio desde la nave que es el elemento más destacado de la iglesia, e impide ponerlo en relación la otra pieza singular, la portada. Su eliminación permite también enfatizar la entrada de luz del oeste a la nave, atravesando la ventana estrecha ubicada encima de la Portada de la fachada principal.
Rúa de San Pedro 94, 2º.
15703 Santiago de Compostela.
A Coruña. España.
arquitectos@arrokabe.com
Tlf. +34 981 57 50 52