
Rua de San Pedro. Santiago de Compostela. A Coruña
P.2014 – O.2018
Fotografías Luis Díaz Díaz
• IV Premio de Arquitectura de Teja HISPALYT 2017-2019 ‑ Seleccionada Categoría Rehabilitación
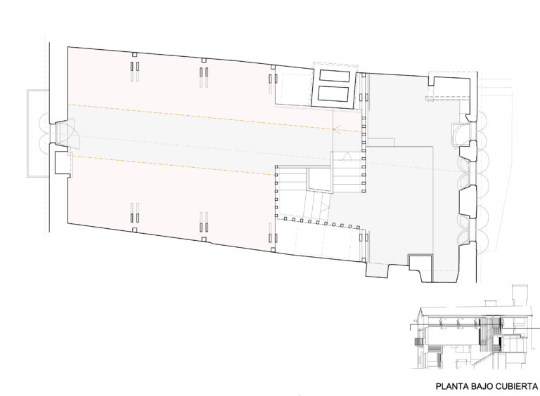
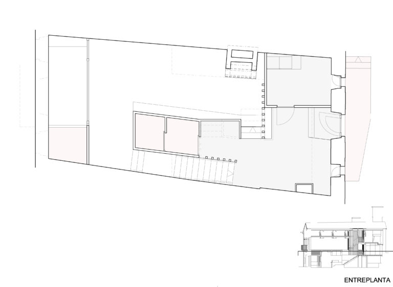
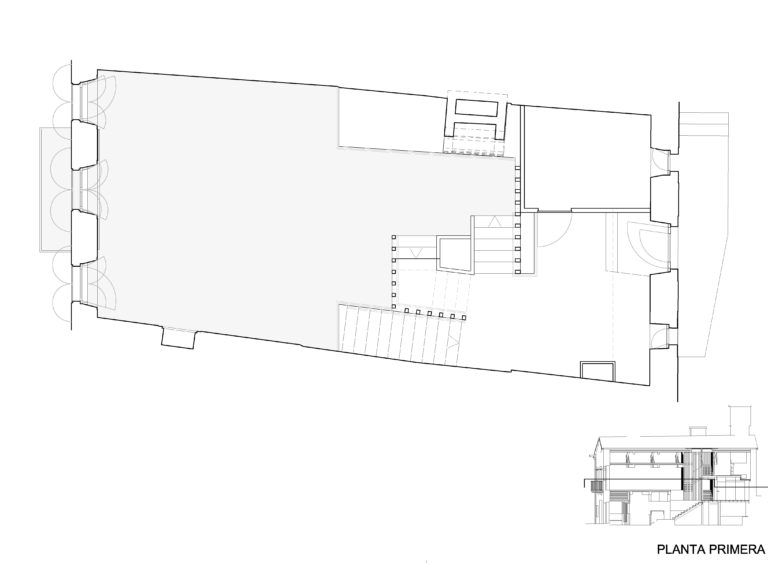
La edificación es una construcción tradicional con una tipología de origen medieval propia de los rueiros de Santiago de Compostela caracterizada por la presencia de sus dos muros piñones dispuestos como fachadas. Hoy en día sólo quedan en el barrio dos inmuebles con esta tipología. La edificación es, por tanto, un testimonio del origen de San Pedro que nació como asentamiento extramuros en el camino Francés, ruta principal de peregrinaje histórica y actualmente.
La rehabilitación contribuye a una relectura del edificio consecuente con la riqueza espacial que supone este desplazamiento de alturas y con la singularidad de los diferentes elementos patrimoniales. La propuesta permite la recuperación, visibilización y la puesta en uso de dichos elementos facilita la comprensión de su función y necesidad. Se reaprovecharon, además, baldosas hidráulicas y los tablones de madera aserrada de castaño que, a pesar de sus grandes dimensiones y del prolongado abandono de la edificación, se conservaban en buen estado y no habían sufrido deformaciones.
Rúa de San Pedro 94, 2º.
15703 Santiago de Compostela.
A Coruña. España.
arquitectos@arrokabe.com
Tlf. +34 981 57 50 52