
Lugar de Regoufe, Teo, A Coruña
P. 2021 – O.2023
Fotografías Luís Díaz Díaz
• Premios Arquitectura CSCAE 2024 ‑ Seleccionada
• Premios AMAD Arquitectura en Madera 2023 ‑ Accésit
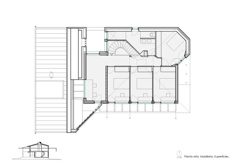
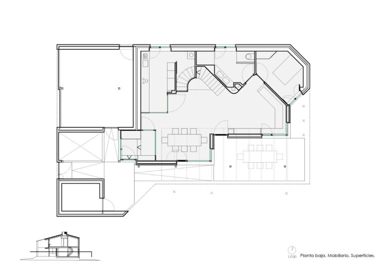
Casa Regoufe es una vivienda de uso habitual para una pareja y sus tres hijos. En planta baja, resuelve un espacio de salón-comedor cocina, un baño y un dormitorio accesible pensado, en principio, para poder acoger en el futuro a miembros ancianos de la familia. En planta alta, se resuelven cuatro dormitorios, un estudio planteado con como un ensanchamiento del pasillo en su remate y un baño.
Los clientes, aun valorando como positiva la utilización intensa de la madera y su prevalencia para la identidad de la vivienda, no querían que ésta se caracterizara únicamente por el uso de este material; la complejidad estética a la que aspiraban pasaba por la combinación de distintos materiales y guiños a distintos estilos y geografías. El proyecto asumió estas exigencias sin prescindir de las referencias claras a la arquitectura gallega tanto en su tectónica como en la configuración de sus espacios.
La envolvente vertical, donde limita con zonas no estanciales, se resuelve con muros de carga, con fábricas de bloque de hormigón (vista en el garaje) y una hoja exterior ladrillo macizo cara vista. Pequeños desplazamientos en los ladrillos originan patrones que animan estos paramentos y que facilitarán, además, la instalación de las plantas trepadoras con las que se prevé cubrir gran parte de ellos. No obstante, en aquellas zonas donde limita con espacios exteriores de uso habitual, se resuelve con entramado ligero y revestimiento de tabla, potenciando su carácter amable y estableciendo un vínculo entre la edificación y su entorno natural. La cubierta se resuelve también en madera, con revestimiento de chapa de zinc. Se ha utilizado hormigón armado para los arranques de los distintos cerramientos y para el forjado de piso, y acero para apoyos puntuales.
Además de los espacios climatizados, el programa incluye un garaje, una zona de almacenamiento e instalaciones y una serie de espacios a cubierto que comunican estas piezas, el acceso desde la vía situada al oeste y los dos accesos al interior de la vivienda. El primero de ellos, a la zona de comedor-cocina, se organiza a través de un vestíbulo acristalado y ventilado resuelto como un espacio de transición para dejar calzado, ropa de agua etc.; el segundo, atraviesa un corredor protegido de la lluvia por una marquesina de vidrio y un porche para acceder, junto al estar, frente a la escalera. El generoso volumen resultante afronta su relación con el entorno con dos escalas diferenciadas. En el frente oeste, donde se resuelven los espacios de servicio no climatizados, se presenta a la vía con una escala ajustada (2,70 m de altura) y crece hasta alcanzar 6,95m en su extremo este. Se reproduce, así, la tipología repetida en el núcleo próximo donde, para acceder a las viviendas de dos alturas, es necesario atravesar zonas de servicio (porquerizas, almacenes etc.) que resuelven la transición desde el espacio público. Su altura y posición elevada permite que su presencia domine la parcela (de casi 2.000m2) y consolide el carácter auxiliar de la pequeña construcción tradicional existente.
Rúa de San Pedro 94, 2º.
15703 Santiago de Compostela.
A Coruña. España.
arquitectos@arrokabe.com
Tlf. +34 981 57 50 52