
Rúa Santiago. Vigo
P.2017 – O.2020
Fotografías Luis Díaz Díaz
• Premio Egurtek de Arquitectura y Técnicas de la Madera 2022 ‑ Primer Premio Interiorismo
• 19° Bienal Internacional de Arquitectura de Buenos Aires 2024 ‑ Seleccionada
• Premio Gran de Area 2020 ‑ Premio
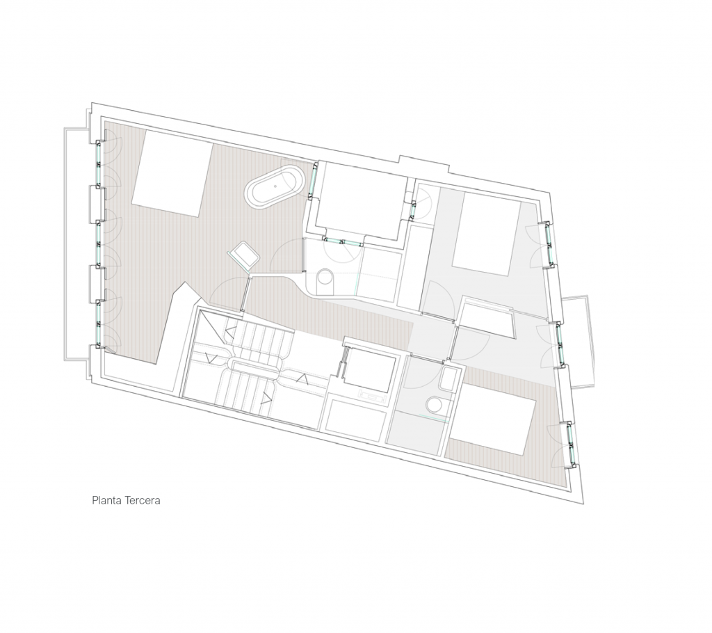
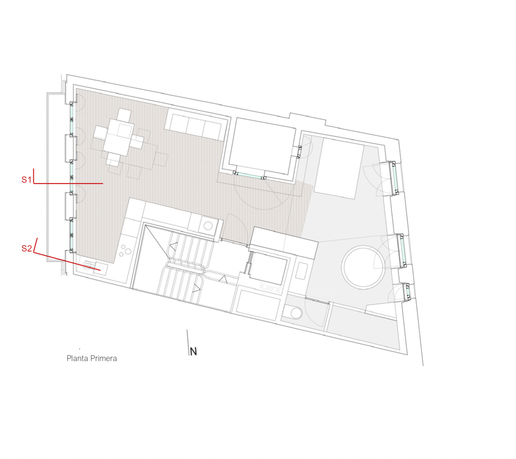
La edificación es una construcción entre medianeras de cinco alturas construida en 1932. El proyecto que presentamos se ocupa de la rehabilitación de la planta primera para uso de apartamento y de la de las plantas segunda, tercera y bajocubierta para una vivienda tríplex. El "zócalo" formado por la planta baja y la entreplanta se destina para uso comercial: Espacio El Olivo
La estructura vertical es de muros de carga de cantería granítica de una sola hoja de 20cm de espesor.
En el interior de las viviendas los cerramientos de piedra granítica se aíslan y trasdosan para alcanzar unas condiciones higrotérmicas adecuadas.
La estructura horizontal que conforma los forjados de piso es de madera de pino tea y está formada por un doble orden de vigas y pontones y entablado de piso que la completa arriostrando el forjado y aportando rigidez al conjunto de la estructura.
La altísima calidad de esta madera en términos de durabilidad y estabilidad y su sofisticada configuración en cuanto a dimensionado y resolución de las uniones le dotan de un gran valor patrimonial. Por ello, su conservación, reparación y puesta en uso se adoptó como uno de los argumentos principales de la intervención.

Se pretende que en el resultado final sea testigo de los valores de la construcción original y de los distintos procesos que lo han alterado ofreciendo, a la vez, un nuevo espacio adaptado a los más altos estándares de construcción actuales generando una atmosfera cálida, luminosa y con una espacialidad fluida e interconectada.
Rúa de San Pedro 94, 2º.
15703 Santiago de Compostela.
A Coruña. España.
arquitectos@arrokabe.com
Tlf. +34 981 57 50 52