
P.2005
Fotografías Bernardo Dieguéz
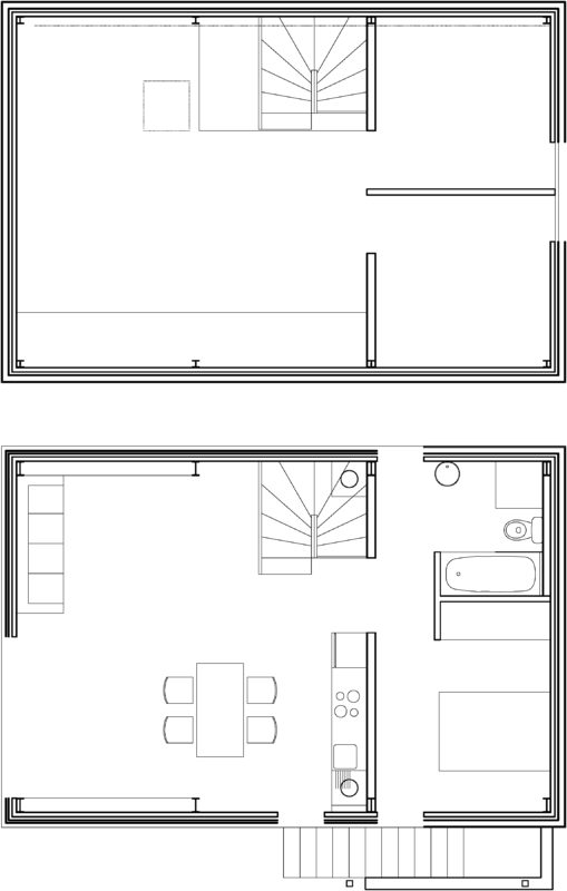
Se trata de una vivienda con un uso ocasional concebida en su volumetría, composición y materiales de acabado exterior como un almacén agrícola.
Se construyen cerramientos ligeros que permiten alcanzar condiciones interiores de confort en el mínimo tiempo posible e incorporan un sistema de correderas que posibilitan cerrar totalmente la edificación. Se resuelve mediante un volumen compacto de planta rectangular con cubierta a dos aguas. Aunque acoge dos niveles, la altura de "cornisa" equivale a la habitual en las construcciones de planta baja del entorno.
Se ejecuta mediante una construcción sencilla que pone acento en la facilidad de montaje basada en un primer orden estructural de cuatro pórticos metálicos situados a tres metros de distancia sobre los que apoyan escuadrías de madera que sirven como pontones de piso o correas de cubierta. Un único tipo de panel "sándwich" resuelve la hoja interior de toda la envolvente solucionando el acabado, el aislamiento y la base para la fijación del rastrelado. Éste conforma la cámara de aire ventilada y se utiliza como sujeción de la tabla de abeto que funciona como revestimiento de la cara exterior del cerramiento vertical y como base para la chapa de zinc de la cubierta.
Rúa de San Pedro 94, 2º.
15703 Santiago de Compostela.
A Coruña. España.
arquitectos@arrokabe.com
Tlf. +34 981 57 50 52