
Oza. Teo. A Coruña
P.2013 O.2018
Fotografías Luis Díaz Díaz
• XVII Premios COAG 2017 ‑ Finalista Categoría Vivienda
• III Premio de Arquitectura de Teja HISPALYT 2018 ‑ Mención
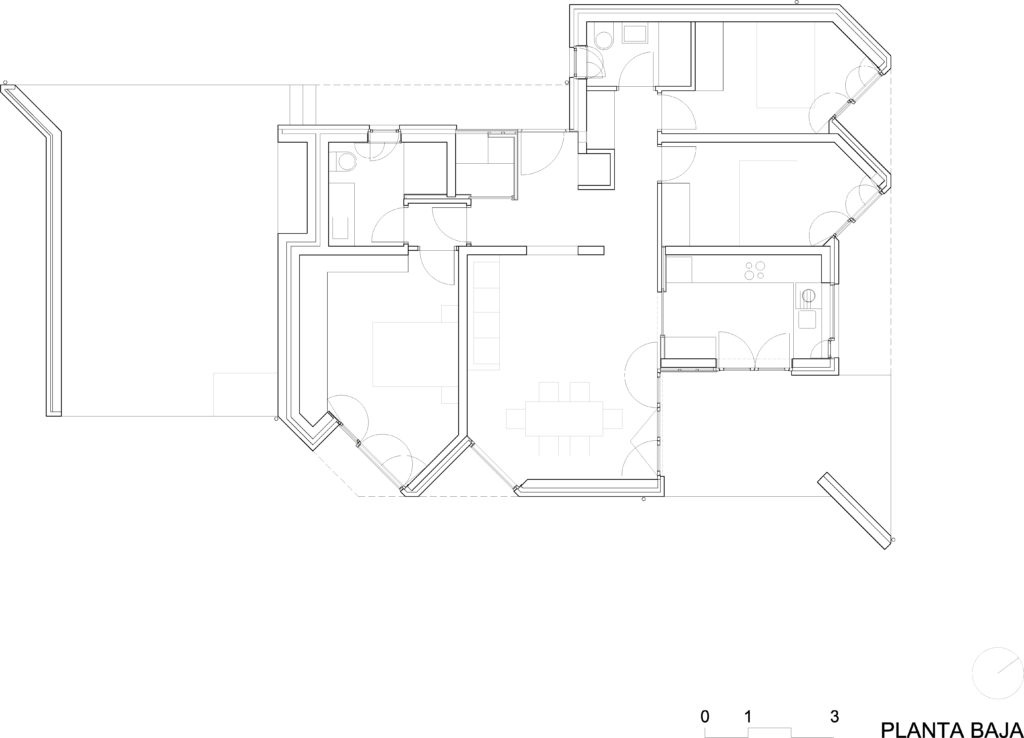
La vivienda se resuelve en una sola planta con una única cubierta a tres aguas que sirve tanto para la parte cerrada como para los espacios exteriores abiertos, incluido el garaje. Los gestos en planta responden a la búsqueda de la mejor orientación para cada una de las estancias primando las vistas sobre el valle y el bosque cercano.
El resultado es un único volumen bajo, compacto y anclado al terreno que, desde un punto de vista compositivo, juega con recursos comunes en las construcciones tradicionales (cerramientos pesados con textura rugosa que contrastan con paños de cierre ligero de entablado y carpintería de madera), y desde el punto de vista estructural se resuelve con un sencillo sistema de muros de carga y un armazón de cubierta de madera.
Rúa de San Pedro 94, 2º.
15703 Santiago de Compostela.
A Coruña. España.
arquitectos@arrokabe.com
Tlf. +34 981 57 50 52